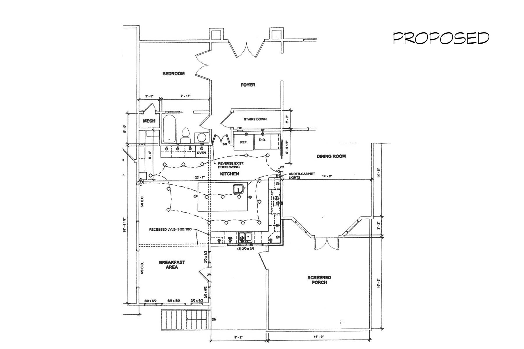
The client’s kitchen had fallen out of style and had a cramped feel. The homeowner wanted to impart a more stylish look keeping with the new homes being built near their neighborhood.

The 1990s kitchen featured odd angles, limited cabinet space, inadequate work areas, and congested walkways. The style was transformed with a large 54″ x 108″ island, stunning granite countertops, new high-end appliances, superior Mouser cabinets, a walk-in pantry, a handcrafted copper exhaust hood, and a custom garden window. Removing walls transformed this kitchen into an open, inviting space with greater capacity for entertaining, better traffic flow, maximum storage, and expanded work areas.

2018 Contractor of the Year (CotY) Award Winner Kitchen Over $150,000

“This renovation was the third project that ADB has done for us and there is good reason that we keep engaging their services. In our experience, ADB has always been easy to work with, very knowledgeable and competent, always courteous and considerate, and there have never been any unpleasant “surprises” at the end of the jobs. They take pride in their work and reputation and, therefore, want their clients to be happy with the end results.”

Photography by Barbara Brown Photography