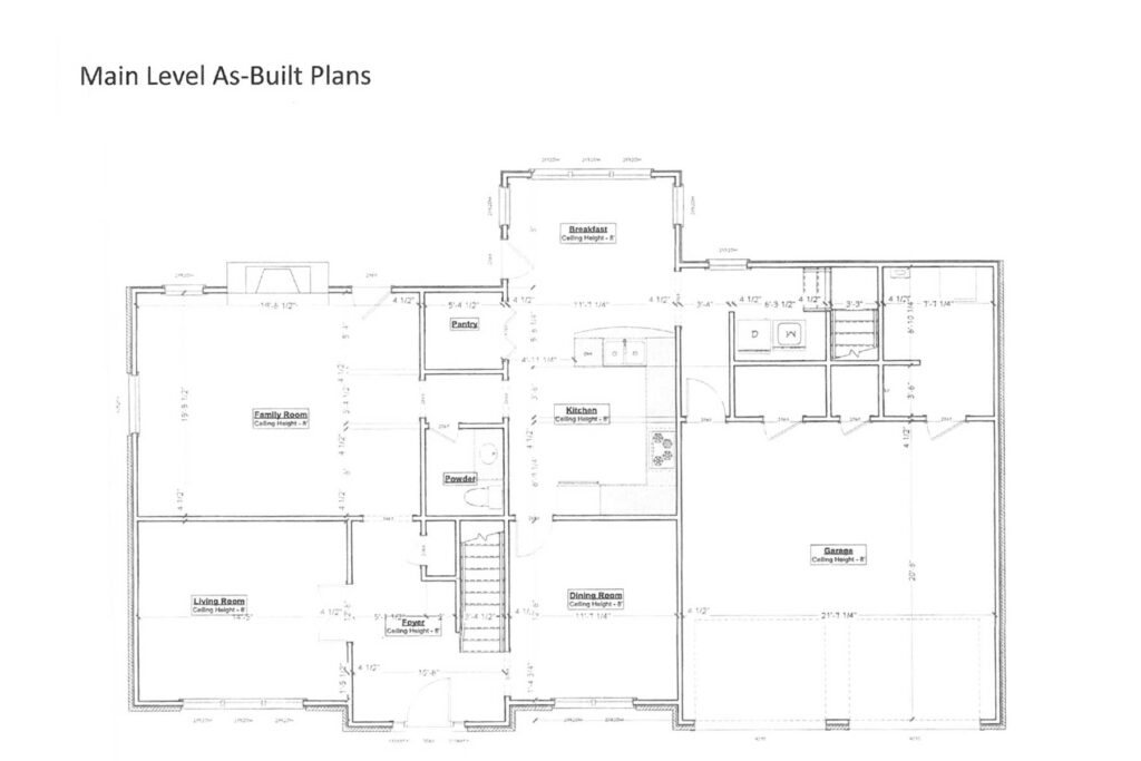
Our clients wanted to upgrade their 1984 home to be stylish and less segmented and also renovate their upstairs master and hall baths. They asked to relocate the fireplace to increase the home’s openness to their backyard and create an outdoor “comfort area”. Relocating the powder room from the center of the home and the laundry room to the upstairs plus moving the pantry created their open main floor. A wall of French doors and an entertaining pass-thru window transformed the view and accessibility to the backyard. An outdoor lanai strategically placed by the pool area blends inside and out extending the home’s living/entertaining space.

2019 NARI Atlanta CotY Award Winner: Entire House Under $250,000