Skip to content
Find a Local Builder

Marietta

  • Projects
  • Articles
  • Meet the Team
  • Contact

Custom Home Builders

Alair builds exceptional homes for extraordinary lives. Your home is more than a great place to be – it’s where your family’s story unfolds. It profoundly shapes the way you live, grow, and relate to each-other. Working together, we’ll build you a home that reflects your lifestyle, values, and dreams.

Explore our network of custom home builders

Marietta

Search by location, keyword or topic

  • Projects
  • Articles
  • Meet the Team
  • Contact
  • Find a local builder

Custom Home Builders

Alair builds exceptional homes for extraordinary lives. Your home is more than a great place to be – it’s where your family’s story unfolds. It profoundly shapes the way you live, grow, and relate to each-other. Working together, we’ll build you a home that reflects your lifestyle, values, and dreams.

Explore our network of custom home builders

  • Portfolio
  • Local Builders
  • Insights
  • Alair Cares
    • About Alair
    • Alair for Builders
    • Alair Magazine
    • Awards
    • Careers
    • Contact
Become a local builder

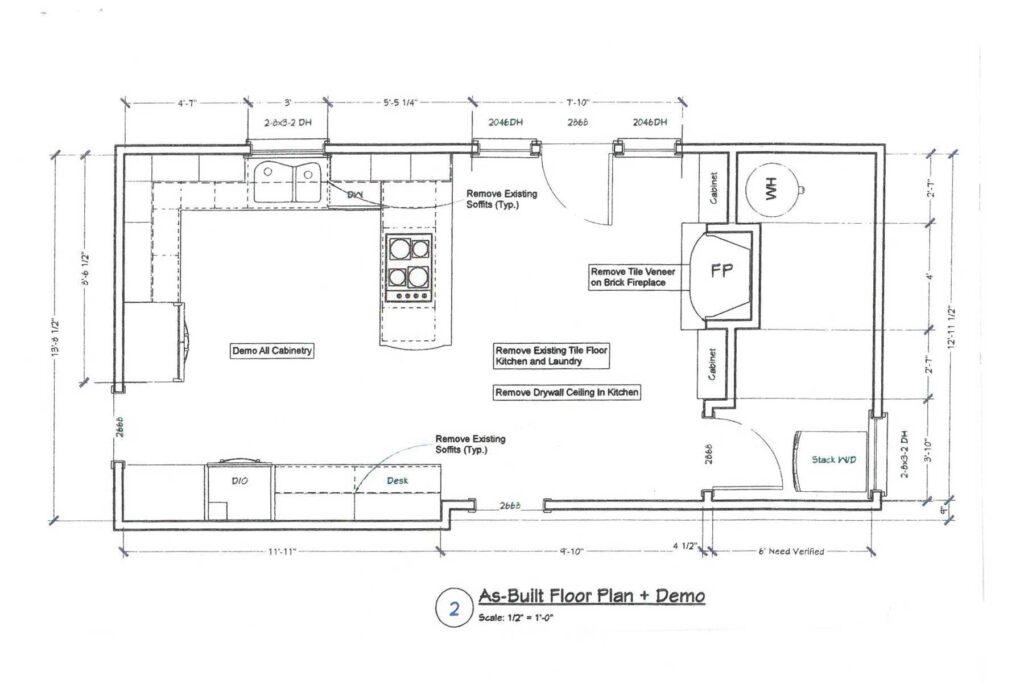
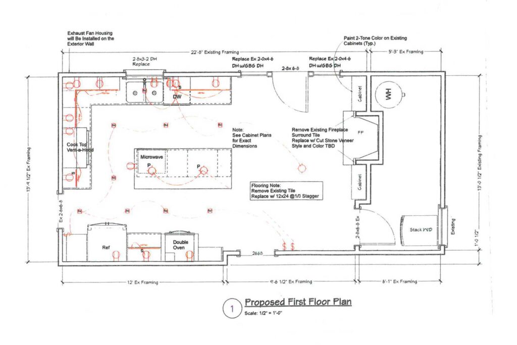
Collingham Trace Kitchen Remodel

  • Local Builder

    Alair Marietta

  • Project

    Remodel & Renovation

  • Location

    Marietta, Georgia
    United States

Previous Project Next Project
Contact Local Builder

Related projects

  • Murray’s Loch Whole Home Renovation

    • Alair Marietta
    • Remodel & Renovation // Marietta, Georgia
    View Project
    • Alair Marietta
    • Remodel & Renovation // Marietta, Georgia
  • Fairville Court Whole House Remodel

    • Alair Marietta
    • Remodel & Renovation // Marietta, Georgia
    View Project
    • Alair Marietta
    • Remodel & Renovation // Marietta, Georgia
Previous Project Return to Portfolio Next Project

Marietta

  • 770-565-8999

From the ground up

We’re always building homes, communities, teams, and opportunities. Sign up to receive the latest news, stories, and updates from Alair.

Newsletter sign up

"*" indicates required fields

Join Newsletter

Alair Homes is a network of independently owned custom home builders across North America.

Every Alair location is locally owned and operated, combining local expertise with the shared processes, standards, and support of the Alair Homes brand to deliver a better custom home building experience.

Contact head office

  • [email protected]

Follow us

  • Pinterest
  • Instagram
  • YouTube
  • Facebook
  • Builders
  • Franchise
  • About
  • Alair Cares
  • Alair Magazine
  • Careers
  • Client Login
  • Contact

© 2026 Alair Homes. All rights reserved

  • Privacy Policy