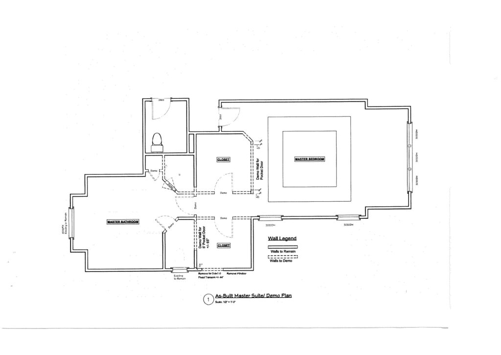
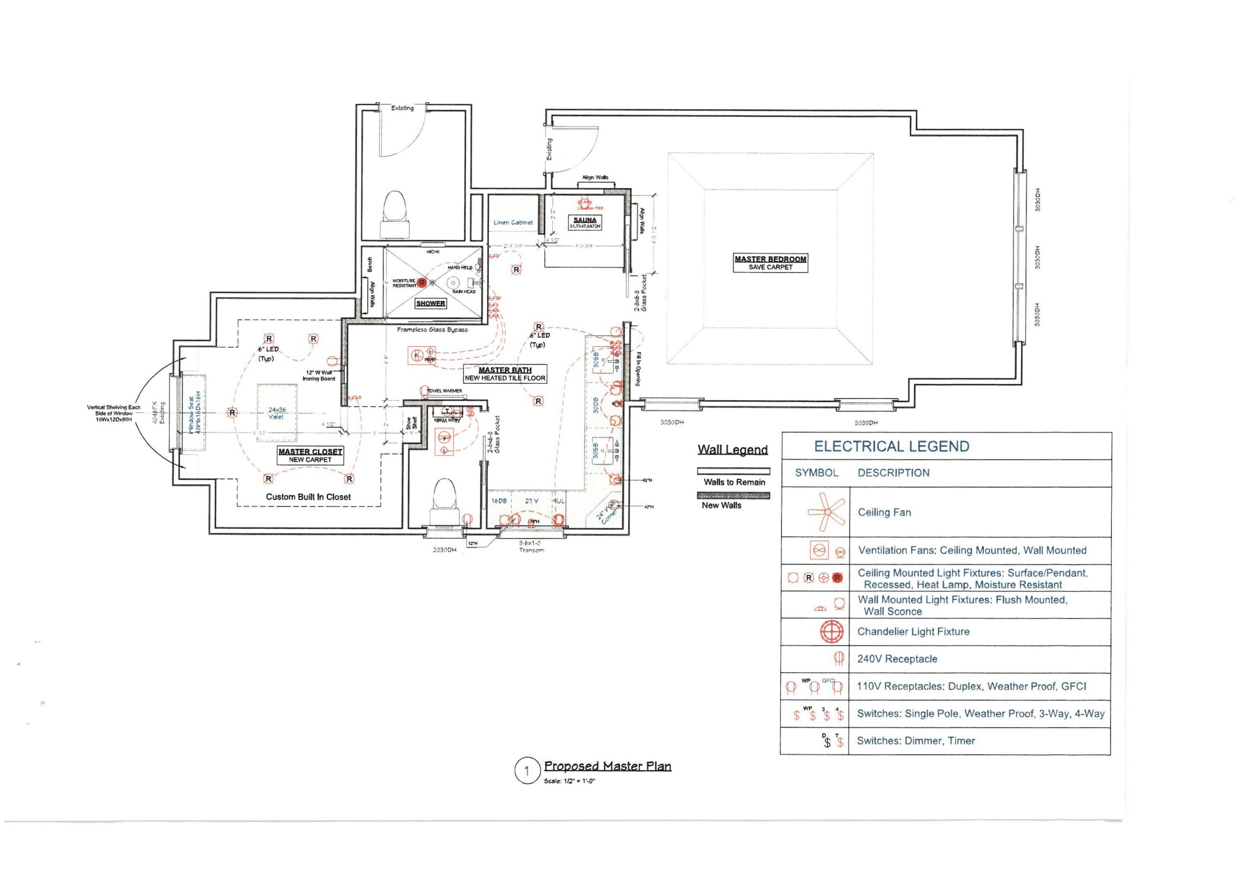
This Wynthrop Manor home had a dated bathroom with an awkward layout. The couple had to walk down a narrow hallway, past their separate walk-in closets, in order to access the bathroom. We changed the layout to lead from the master bedroom, through a rain-glass pocket door, and right into their spacious master bathroom. Behind the bathroom we built an expansive custom closet for two.

The bathroom boasts a heated tile floor, a heated towel rack, and a luxurious walk-in shower. The prominently featured dark bronze hardware compliments the abundance of white and pearl tiles used. Gleaming pearl subway tiles create a lovely backsplash/accent wall behind the white double vanity. There is storage galore with white custom cabinetry, including ample storage solutions.

The infrared sauna for two is snuggled as an elegant focal point beside a roomy linen closet and affords vast storage above it as well. Redesigning the bedroom’s bulky wall that previously contained one of their closets created a direct entrance to their new spa-like master bath. Using our HOMEStyle System™’s INSPIREDDesign™, we were able to execute a redesign on this space to transform our clients’ home and enrich their lives!

2020 NARI National CotY Award winner: Residential Bath $75,001 – $100,000

2020 NARI SE Regional CotY Award winner: Residential Bath $75,001 – $100,000

2019 NARI Atlanta CotY Award winner: Residential Bath $75,001 – $100,000

Photography by Barbara Brown