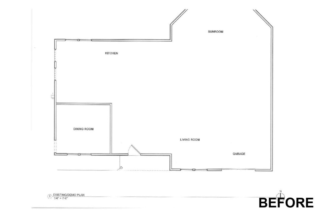
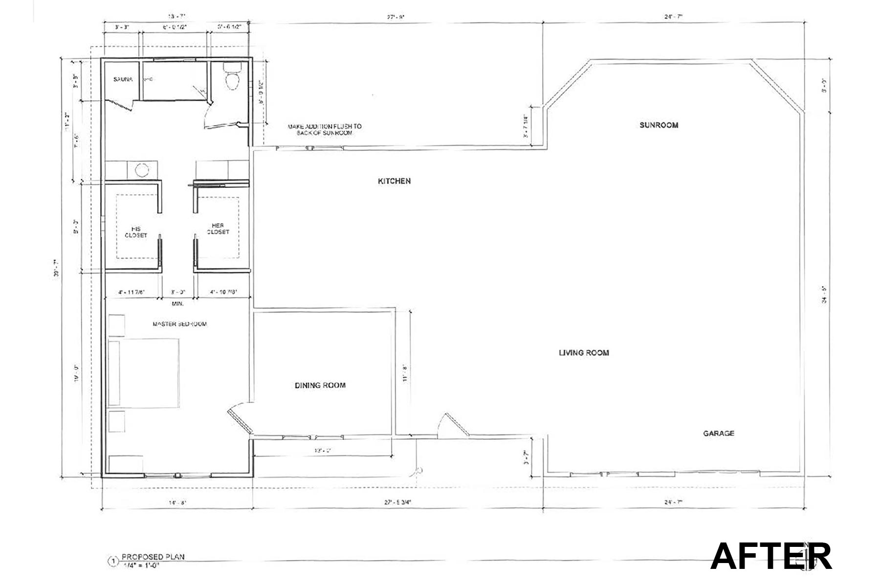
This Master Suite Addition containing Universal Design elements for Aging in Place is accessed a short 15’ walking distance from the front door via a “hidden door” in the dining room. Contrasting color and texture of bedroom wood flooring and white marble bath, with an artistic blend of glass tiles in the shower and ceramic tiles in the bath Wainscot, exudes stately elegance. From custom closets, custom cabinetry with storage solutions, built-in ironing board, frosted-glass and mirrored by-pass doors, radiant heat sauna, heated tile floor, shower floor, niches, and bench to a crystal chandelier, this space is elegantly over the top!

2016 NARI Atlanta CotY Award Winner: Residential Addition $100,001 – $250,000.