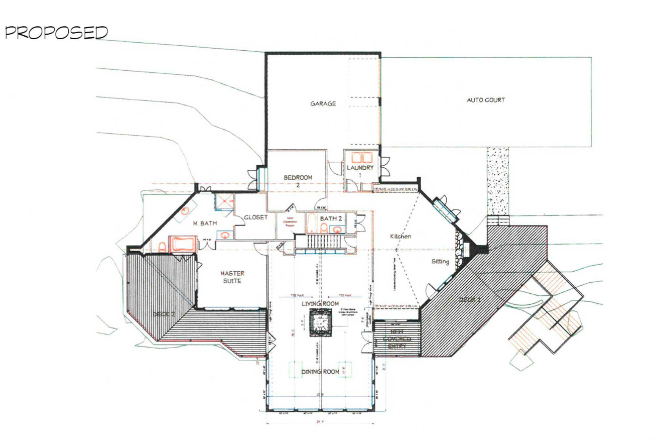
The clients’ newly purchased 2-story lakefront home was dated. They wanted an addition to modernize and expand the home enhancing the lake views, without making the house look “pretentious”. An extensive update with many special features included kitchen and bath renovations and the construction of two massive, stacked-stone fireplaces. The centerpiece is an expanded, 38’ x 25’ Great Room with 270-degree lake views, a 19’ cathedral ceiling, and a three-story-high exterior glass wall. The open floor plan features wide walkways of warm, reclaimed pine connecting a dining room, family room, and fireside library with amazing lake views drawing the eye from every corner. The update also included taking full advantage of their beautiful surroundings by adding several outdoor living spaces; decking, covered patios, stone steps and pathways, a boat house, and an IPE wood dock.

2019 NARI National CotY Award winner: Entire House Over $1,000,000
2019 NARI SE Regional CotY Award winner: Entire House Over $1,000,000
2018 NARI Atlanta CotY Award winner: Entire House Over $1,000,000

After Photography by Barbara Brown Photography