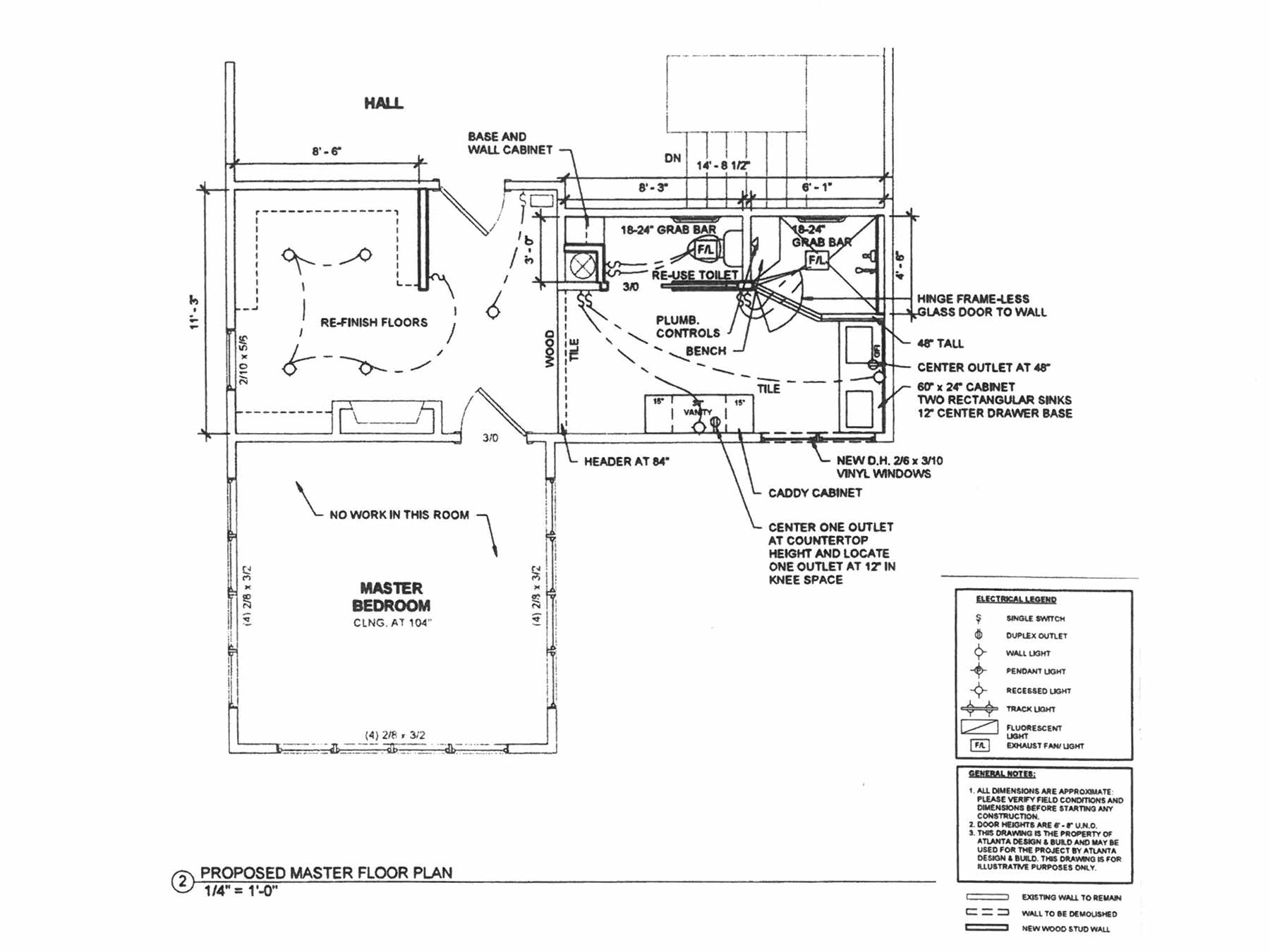
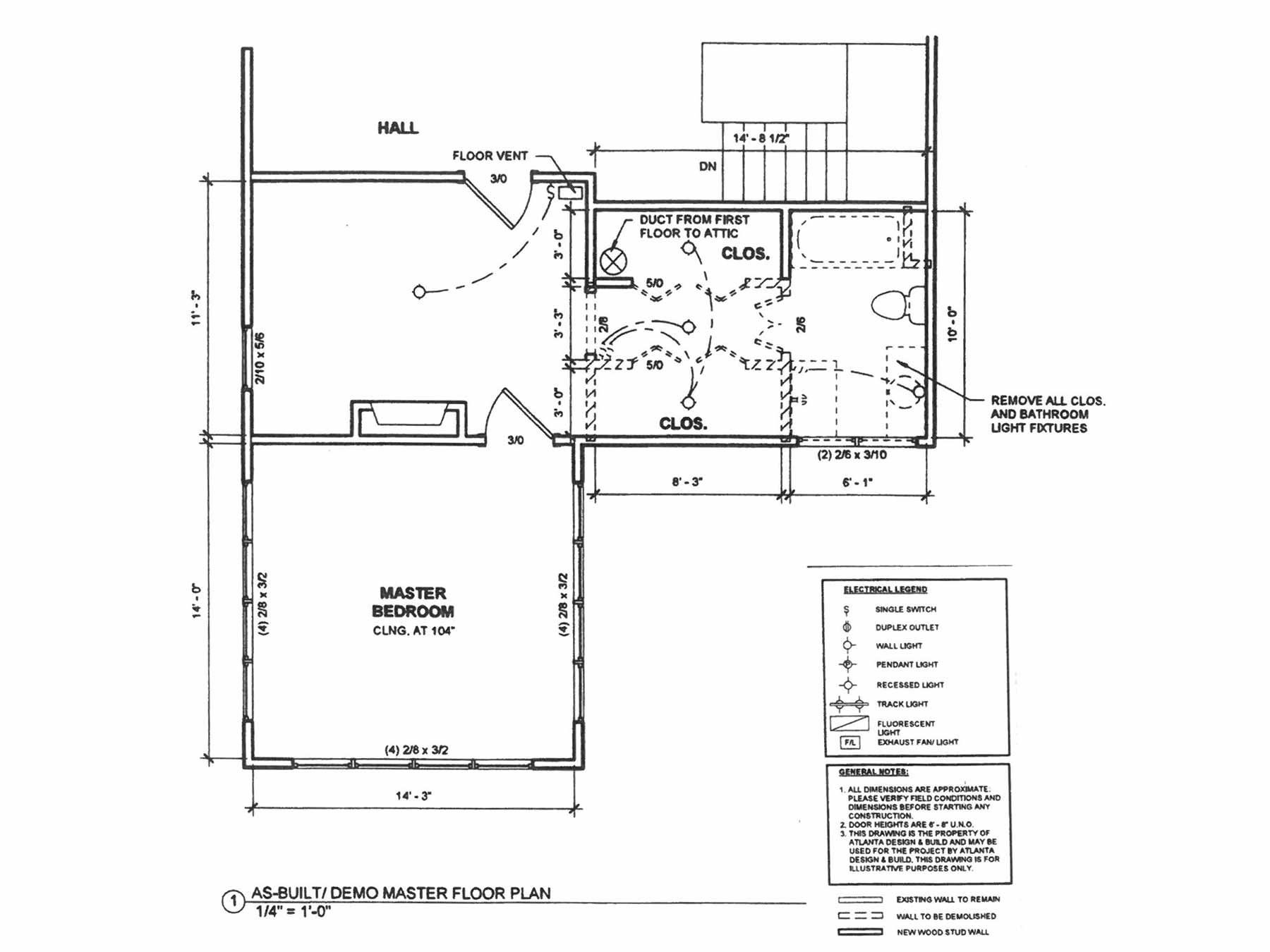
Our clients loved the architectural detail, craftsmanship, and location of their 1927 Craftsman bungalow. That said, they desperately wanted their Master Bathroom to enter the 21st century, since its most recent remodel was in the 1970s. Their dream was to enlarge the bath while creating a clean, functional, Modern Transitional haven. Painstakingly removing wood-slat and plaster walls formed the desired bright and open space. Custom floating vanities with high-end grey Richelieu CHP laminate veneer, white quartz countertops, a large walk-in shower, and tasteful white with subtle grey veining marble-look tile throughout the spacious floorplan brought their dream to reality.

2018 Contractor of the Year (CotY) Award Winner – Residential Bath $25,000 – $50,000