We’re proud to introduce our Architect Collaborative DADU Program, developed in partnership with leading Seattle and Eastside architects to address the unique zoning, permitting, and neighborhood considerations of our region.

This curated collection of predesigned Detached Accessory Dwelling Unit plans blends thoughtful architectural design with Alair’s proven construction expertise. The result is a more streamlined and predictable path to building a high quality DADU, without sacrificing design integrity.

Each plan is fully compliant with local codes and intentionally designed to allow customization. Homeowners can tailor layouts, finishes, and features to suit their property, lifestyle, and long term goals. Whether you are planning for rental income, multigenerational living, guest accommodations, or flexible living space, this collaborative approach brings clarity and confidence from concept through construction.

Two Story Farmhouse

This Modern Farmhouse DADU is a fully detached, two bedroom accessory dwelling unit designed for long term living, flexibility, and lasting value. Blending classic farmhouse character with clean, modern architecture, it functions as a complete second home rather than an add on or conversion.

Designed within a compact footprint for site flexibility, the two story layout lives comfortably and efficiently while maintaining the feel of a true residence. The main level features an open kitchen, dining, and living area filled with natural light, supported by integrated storage and a dedicated laundry and pantry space. Upstairs, the plan offers a private primary retreat, a generous second bedroom suitable for guests or office use, and a full spa inspired bathroom. Vaulted ceilings enhance volume and comfort throughout.

Natural materials, layered textures, oversized windows, and a welcoming porch presence allow the home to complement established Seattle and Eastside neighborhoods. As a fully independent DADU, it includes its own entry, utilities, and dedicated outdoor space, supporting lifestyle flexibility and long term property value.

Architect: Wilson Studio 

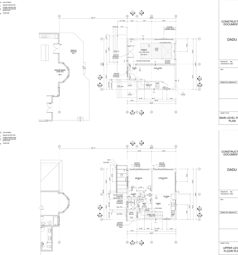
Modern farmhouse DADU floor plans showing main level living spaces and upper level bedrooms

The floor plans illustrate a clear separation between public and private spaces, efficient circulation, and flexibility for long term living. Every square foot is intentionally designed to support comfort, daily use, and adaptability over time.

One Bedroom DADU

example of a DADU

Create More Space for What Matters Most

Strata Architect’s thoughtfully designed detached accessory dwelling unit (DADU) offers the perfect blend of flexibility and comfort for modern living.

The upper level features a cozy living area and a private bedroom, ideal for a remote office, welcoming visiting family, or providing an independent space for a loved one.

On the lower level, you will find a convenient one car garage and a versatile flex space that adapts to any lifestyle. Whether you envision a second bedroom, a home gym, or another dedicated workspace, this area is designed to meet your needs.

Step outside to enjoy a covered deck that seamlessly connects indoor comfort with outdoor relaxation, perfect for year round enjoyment.

Your space. Your way. Designed for family, work, and life.

Architect: Strata Architects 

The floor plans illustrate a clear separation between living and utility spaces, allowing the home to function efficiently while remaining flexible. The layout supports multiple uses over time, making it well suited for evolving household needs.