Building a home at Arbutus Ridge on Bowen Island offers a rare opportunity to design and build custom homes in one of the island’s most tranquil and beautiful settings.

There are currently seven lots available, many with amazing ocean views. The lots are ideal for those looking to craft homes that blend with the natural environment. Living on Bowen Island offers an escape from city life while still being close to Vancouver. The opportunity here lies in creating something truly unique, tailored to the owner’s vision, while taking advantage of the stunning natural backdrop and proximity to amenities.

A Unique Opportunity

There are few places left in the Vancouver area that provide this combination of untouched nature, community feel and proximity to a major urban centre. Arbutus Ridge is also one of the few developments where buyers have the freedom to design homes with their own builders, rather than being limited to pre-built or pre-designed homes. 

It’s an opportunity for personalized, bespoke living in a growing community that values sustainability and the natural beauty of the Pacific Northwest. Additionally, with the lots offering some of the most picturesque views of the ocean and mountains, it’s an unparalleled location.

“One of the most compelling aspects of Arbutus Ridge is that it’s part of a thoughtfully planned, smaller-scale community that feels more intimate and connected,” says David Beckow, Head of Development at Arbutus Ridge. 

“There’s a limited number of lots available, making it feel exclusive while still fostering a strong sense of neighbourly connection. For those who prioritize building a custom home and being part of a unique community, Arbutus Ridge presents an unmatched opportunity.” 

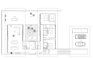
Plan design: SMSTUDIO

Lot Description

The lots at Arbutus Ridge are generously sized and thoughtfully laid out to maximize privacy and take full advantage of the natural surroundings. Each lot has unique topographical features, with opportunities to incorporate views, sunlight and natural landscaping into the design of homes. While some are nestled among the trees, others provide expansive views of Howe Sound. Overall, they are perfect for those who want to build custom homes that harmonize with nature.

When developing the lots, Arbutus Ridge has maintained many of the trees in the area. Also, due to the rise in elevation here, there are some fantastic ocean and landscape views to enjoy. Plus, there are very few city lights on the island which allows for beautiful night skies and unparalleled tranquility. 

Building on Bowen Island 

Alair Squamish partner Jason Zavitz just completed a very unique oceanfront build on the north end of Bowen island. The home is 1100 square feet and includes a 1200 square foot deck, covered patio and carport.  Zavitz says that there are some things to consider when building at a location like Bowen Island. 

“Island building does have its challenges. Ferry delays, extra shipping fees and weather, to name a few. One thing that took us all by surprise was the moisture in the air being so close to the water. Drywall mud and paint took exceptionally long to dry. Even with fans, heaters and dehumidifiers at work, 24/7,” says Zavitz. “But it wasn’t anything my experience team of trades couldn’t handle.” 

Advantages of Living on Bowen Island

Arbutus Ridge is perfect for those who seek a balanced lifestyle—peaceful, nature-filled living while staying within easy reach of the city. Living here means access to hiking trails, beaches and a close-knit community. Bowen Island’s charm and its commitment to sustainable living also make it a highly desirable place to build a home for those who value environmental consciousness and a slower pace of life. 

“It’s an excellent place for families, retirees, or anyone looking to escape the daily grind while remaining connected,” says Beckow.  

For those who still need to, getting to the city is quick and easy with the ferry ride only being 15 minutes. There are also private ferries that will take foot passengers directly into downtown Vancouver.  Bowen is a perfect location for those who are able to work from home but still need to make an appearance in the city one or two days a week. 

An avid outdoorsman and nature lover, Zavitz says loves the island because of all the surrounding flora and fauna. 

“With the lack of forestry industry, you’ll notice the size and beauty of all of the trees throughout the island. Nature is everywhere with the large population of deer that populate the island. The pace of life truly does slow down on Bowen. Island time is a real thing!” says Zavitz. 

If you are interested in learning more about building a home at Arbutus Ridge, be sure to get in touch