Reasons to Add-on to Your home

Adding space to your Edmonton property is a great way to make your home more enjoyable and increase your property value. If you are considering a move in the future, the right addition can turn your home into one that is desired by Edmonton buyers and reduce the amount of time it remains on the market.

When considering a home addition, it is important to make the right choices. Always add on to your home in a way that enhances the beauty and usability of the space but also matches the architectural details and property values within your neighborhood. It is also important to finish your addition professionally and follow all zoning and permit laws throughout the building process.

Adding a Sunroom

One of the most desirable additions in Edmonton neighbourhoods is a sunroom. A sunroom allows homeowners to enjoy the outdoors year round, and it increases the usable square footage of a home. Today’s sunrooms offer many amenities to enhance comfort including heated floors, air conditioning and heating, energy efficient windows and cathedral ceilings. A great sunroom can serve as a wonderful outdoor kitchen and dining area when extended family come to visit, a beautiful library for reading enthusiasts or a bright and airy playroom for the youngest members of the family.

Edmonton sunrooms are typically added to the back of a home, off of a family gathering spot. Many people choose to construct their sunrooms off the kitchen, but the flow of a home is sometimes improved if the sunroom extends off the family room or dining room instead. Sunrooms are typically a few hundred square feet in size, and the cost to add one varies depending on the features and materials the homeowner selects.

In-Law Suites

Another popular home addition in Edmonton is an in-law suite or granny flat. Multi-generational families are common in this area, and many adults are looking for a safe and comfortable way to house their aging parents. Adding a granny flat gives families the flexibility to comfortably care for aging relatives without experiencing the feelings of intrusion that sometimes occur when too many people are living under one roof. This option also provides rental space within the home or room for growing children later in life.

There are many ways to add an in-law suite to your Edmonton home including converting the basement to full living quarters, adding a second story to an existing home or building a second home on your property. All of these options have advantages and disadvantages, so it is important to consult with a professional contractor to determine which is best for your home and your neighbourhood.

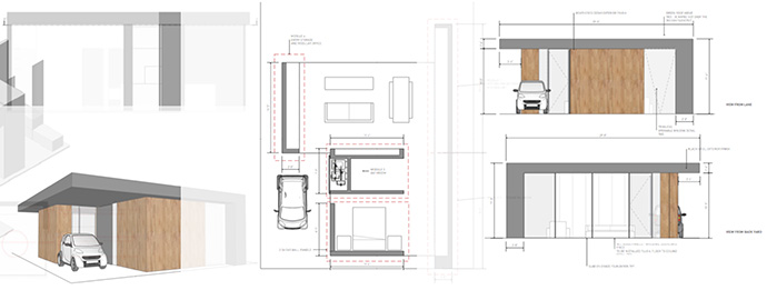
Garage Additons

When homeowners are satisfied with the size of their home but need extra storage or room to bring their favorite car in from the cold, adding a garage is the logical choice. Edmonton garage additions are popular because of the cold climate that is present in this area nearly year round.

Constructing a garage does not have to be complicated, but the homeowner needs to allow ample room for storage and space between each vehicle. There are also some choice to be made including how many cars the garage will house and whether it will be attached or detached from the main house. Adding a new garage in Edmonton also requires some knowledge of electricity and sometimes plumbing, so consulting with a professional contractor is essential.

Alair Homes in Edmonton

When you are considering a home addition in Edmonton, Alair Homes is the number one choice in professional contractors. Our expert team will help you to design your perfect space and keep you involved throughout the construction process. We utilize an innovative software system to keep our homeowners informed every step of the way and provide them with complete control over their projects. In addition, Alair’s award winning reputation has earned us nationwide contacts in the construction industry, and we use these contacts to secure the best prices on sub-contractors and materials for our customers. Finally, Alair backs every project up with an industry leading warranty to provide our homeowners with peace of mind long after the job is complete.

If you are interested in learning more about the many advantages of working with Alair Edmonton, contact our office for a free, no obligation quote and consultation.